Traité de mécanique par J.-Borgnis
LES anciens faisaient usage de deux moyens de transmettre avec une grande célérité des avis et des communications à de grandes distances. Le premier moyen fut particulièrement employé par les Égyptiens. Ce peuple industrieux a su tirer parti du tendre et constant amour qui rend si intéressante la famille des volatiles, emblème de la fidélité conjugale. Les colombiers servirent de télégraphes, et les pigeons devinrent des messagers dont la célérité égalait la fidélité.
Pour obtenir ce résultat étonnant, il suffisait de séparer un pigeon de sa compagne chérie, de le transporter à l’endroit d’où devait partir la dépêche, de le tenir captif jusqu’au moment d’en faire l’expédition ; alors on attachait un billet au cou de l’animal qui, devenu libre, partait soudain et traversait avec une rapidité extrême l’espace qui le séparait de l’objet de son amour...
Le second moyen de communication accélérée consistait dans des signaux formés par la fumée ou bien par des flambeaux. Polybe nous donne l’indication de plusieurs espèces de signaux par des feux dont les anciens se servaient :
1°. C’étaient de grands feux que l’on allumait sur des lieux élevés et qui se correspondaient. Persée recevait en Macédoine des avis de toutes ses provinces, par de semblables signaux. Il existe encore en Suisse, en Italie, et dans quelques autres contrées, d’anciennes tours placées sur des éminences pour servir aux signaux: par le feu, en cas d’invasion ou d’accidents désastreux ;
2°. Des flambeaux, dont on cachait ou l’on rendait visible la flamme produisaient un certain nombre d’indications. Homère et Pausanias font mention de signaux de torches employés par Palamède et par Sinonpendant la guerre de Troie ;
3°. Huit chaudières pleines d’huile servaient à allumer des feux à l’aide de petites branches ou de la paille. Le nombre des chaudières enflammées désignait la place numérique d’une des vingt-quatre lettres de l’alphabet grec, que l’on supposait rangées sur trois lignes de huit lettres chacune; un, deux ou trois feux, placés à quelque distance des chaudières, désignaient dans quelle ligne devait être prise la lettre que l’on voulait signaler ;
4°. Polybe décrit de la manière suivante une invention ingénieuse d’un certain Ænéas, tacticien : plusieurs personnes se placent à de grandes distances dans la
direction même où les avis doivent être communiqués, chacune avec une chaudière de même grandeur et contenant une même quantité d’eau. Sur les côtés de chaque chaudière est un trou égal dans toutes, et sur l’eau flotte un morceau de liège auquel on fixe un bâton perpendiculaire, divisé par parties également éloignées les unes des autres. Aux divisions correspondantes de chaque bâton sont attachés des morceaux de papier contenant les mêmes avis, rapports, ordres, etc. Toutes les personnes sont munies de torches ; lorsque la première élève sa torche, elle débouche en même temps le trou du vase ; la seconde élevant aussi sa torche en fait autant, et ainsi de suite à chaque station.
Quand l’eau du vase est assez écoulée pour que la division qui porte l’avis corresponde à une certaine marque, la première personne baisse sa torche et remet le bouchon ; les autres en font autant, et se trouvent ainsi connaître ce que la première a voulu faire savoir.
Indépendamment des signaux par le feu, les anciens avaient des signaux à l’aide de drapeaux et des signaux sonores : ils les désignaient par les noms de symbola, synthemata, semeia, orata.
Diodore de Sicile raconte que les Perses, par une suite de cris répétés, envoyaient des nouvelles à trente journées de distance
L’invention de la poudre à canon et des bouches à feu fournit une troisième sorte de signaux, précieuse pour la navigation. Un Anglais, M. Fitzgerald, a proposé un moyen bien simple d’augmenter l’effet de cette sorte de signaux ; il suffit d’adapter une trompette marine à l’extrémité d’une arme à feu, comme on le voit ci-dessous. Cette figure représente un pistolet dont le bout a forme une vis qui entre dans un écrou b, placé au bout rétréci de la trompette c.

En 1799, des expériences furent faites à Wolwick pour constater l’effet de cette invention, et il en est résulté qu’une trompette, adaptée à l’extrémité d’un fusil de munition, rendait le bruit du coup de ce fusil égal en force à celui que produit un canon de neuf livres de balle.
On conçoit que cette méthode peut fournir des applications utiles en bien des cas, soit sur mer, pour des signaux de détresse, soit sur terre, pour effrayer les malfaiteurs qui tenteraient une escalade, soit en temps de guerre, pour tromper l’ennemi par une canonnade simulée.
Les trompettes que nous venons d’indiquer doivent être en cuivre, et avoir la solidité requise pour ne pas compromettre la sûreté des personnes qui les emploieraient.
Un nommé Dom Gautkey a proposé d’employer des tubes très longs pour transmettre promptement les avis, en criant à travers ces tubes. Cette idée lui fut suggérée par des expériences sur la propagation du son, au moyen de tuyaux de mille toises de long, appartenant à la conduite d’eau de la machine à vapeur établie à Chaillot
Dom Gautkey pensait qu’au moyen de cent cinquante tubes et de cent cinquante personnes, l’on aurait pu faire parvenir des avis à la distance de cent vingt-cinq lieues.
Kircher avait imaginé un moyen ingénieux de correspondance, mais d’une exécution difficile. Son procédé consiste à former, avec du papier ou avec
quelque autre matière opaque, des lettres qui, collées sur des miroirs exposés au soleil ou à quelque autre lumière, devaient exprimer des phrases par leur ombre sur un mur ou un plan quelconque ; les rayons lumineux reportés sur ce plan, au moyen d’un verre convexe, y dessineraient l’ombre des lettres.
Les méthodes de correspondance que nous venons d’indiquer, ainsi que plusieurs autres qui ont été propo- sées en divers temps, sont très-limitées, et ne remplissent leur but que d’une manière imparfaite. C’est à M. Chappe qu’est due la gloire d’avoir trouvé une machine très-simple, d’une manœuvre facile, qui transmet avec autant de sûreté que de célérité les avis les plus circonstanciés. Quelques personnes croient que le journaliste Linguet a imaginé, en 1782, un télégraphe analogue à celui de Chappe ; mais les données sur lesquelles ils fondent leur opinion sont vagues et douteuses

Télégraphe de Chappe, Pl. XVIII, fig. 1.
Cette importante et belle invention a été mise en usage dans les premières années de la révolution : elle a beaucoup contribué aux succès étonnants qui ont couronné les armes françaises à cette époque. Elle établit une communication, pour ainsi dire, immé- diate entre le gouvernement et les armées, et donne souvent les moyens de maîtriser les événements, en les soumettant à une prompte détermination.
Le télégraphe de Chappe est composé de trois pièces mobiles, ou indicateurs, a a, b, et c. Les diverses positions relatives que l’on fait prendre à ces trois pièces constituent l’essence de cette ma- chine. Le centre de rotation de la barre tournante a a, se trouve exactement dans le milieu de sa longueur ; elle peut décrire autour de ce centre un cercle entier. Les deux autres pièces ou bras, b et c, sont adaptées aux extrémités x et z de la barre a a, et c’est autour d’un de ces points que chacune d’elles peut décrire un cer- cle entier, quelle que soit la position de la barre a a y ainsi donc les bras b et c accompagnent inséparablement la barre principale a a dans sa rotation, et de plus ils ont un mouvement particulier qui leur donne la faculté de faire un angle quelconque avec cette barre.
Les divers mouvements que l’on communique aux trois pièces que nous venons d’indiquer,
produisent 196 configurations différentes, à chacune desquelles on peut attacher une signification convenue.
Le mécanisme qui communique le mouvement à la barre tournante et aux deux bras du télégraphe aboutit à une sorte de manivelle composée, comme la partie supérieure du télégraphe, de trois parties mobiles, et disposées de la même manière. Cette mani- velle représente exactement les mêmes positions que son mouvement imprime aux indicateurs.
Cette ingénieuse disposition permet à l’opérateur de faire agir le télégraphe sans être obligé de regarder en haut pour voir les mouvements des indicateurs, et il est toujours certain que l’effet qu’ils produisent est le même que celui qui a lieu en bas sous ses yeux ; il peut conséquemment opérer, quoique enfermé dans le cabinet qui environne ordinairement le pied du télégraphe
La construction de la manivelle composée qui fait agir le télégraphe, peut varier de plusieurs manières. En voici une dont l’intelligence est facile, en examinant les fig. 5, 6, Pl. XVIII. La fig. 5 est une élévation, la fig. 6 un plan.
Un cadre de fer x x renferme deux poulies tournantes 1, 2, munies chacune d’une manivelle ordinaire 3, 4, et deux poulies de renvois 5, 6.
Une cinquième poulie y est adossée fixement au cadre x x, et elle ne peut se mouvoir indépendamment de ce cadre, dont l’axe de rotation est formé par un boulon z, qui traverse le montant A du télégraphe.
La poulie y correspond à une poulie semblable fixée à l’axe de la barre tournante a a, fig. 1 ; de sorte que si l’on fait passer une corde sans-fin sur ces deux poulies, qui doivent avoir exactement le même diamètre, et si l’on suppose que le cadre x x de la manivelle (fig. 5 et 6) soit parallèle à la barre a a (fig. 1 ), il est évident que l’on ne peut faire tourner ce cadre sans qu’un mouvement semblable ne soit imprimé à la barre ; et l’un et l’autre conserveront leur parallélisme.
Des poulies égales à celles marquées 1, 2, 5, 6 (fig. 5 et 6) sont adaptées à la barre a a (fig. 1), dans les points désignés par les mêmes numéros. Les poulies 1, 2 sont fixées aux bras b et c ; les poulies 5, 6 dirigent les cordes sans-fin, qui passent sur les poulies 1, 2 et sur les correspondantes de la manivelle composée.
On voit par cette disposition que le mouvement circulaire que l’on imprime aux manivelles 3, 4 (fig. 5), doit être semblable à celui que les cordes sans fin transmettent aux bras b, c (fig. 1), et que les angles que feront les manivelles avec le cadre x x (fig. 5) seront égaux à ceux produits par la position des bras respectivement à la barre tournante a a (fig. 1).
TÉLÉGRAPHE POUR LA MARINE
Le télégraphe de Chappe ne donne que 196 signaux; ce nombre n’est point suffisant pour les commandements de marine, qui, suivant la tactique de Buor, en exigent 361.
En employant des drapeaux pour faire ces sortes de signaux, il faut vingt pavillons, cinq guidons et huit flammes. M. de Missiessy a publié en 1786, un ouvrage intitulé : Signaux de jour, de nuit et brune, à l'ancre et à la voile ; imprimé par ordre du roi.
Parmi les mécaniciens qui ont proposé des télégraphes susceptibles de servir aux signaux maritimes, on doit citer avec éloge MM. Breguet et Bétancourt : leur télégraphe fut placé sur l’Observatoire de Paris, et essayé avec succès. Il résulte d’un rapport fait à l'institut, le 21 germinal an 6, que ce télégraphe était susceptible de donner
36 signaux simples, 1.290 doubles, et 43.860 combinaisons, à l’aide de trois signaux combinés.
MM. Laval et Moncabrié ont ensuite proposé un nouveau télégraphe, auquel ils ont donné le nom de vigigraphe, qui exécute avec célérité 999.999 combinaisons, ou un million de signaux moins un. Ce télégraphe résulte de trois parties semblables ; une de ces parties est représenté (4) photo ci-contre.
36 signaux simples, 1.290 doubles, et 43.860 combinaisons, à l’aide de trois signaux combinés.
MM. Laval et Moncabrié ont ensuite proposé un nouveau télégraphe, auquel ils ont donné le nom de vigigraphe, qui exécute avec célérité 999.999 combinaisons, ou un million de signaux moins un. Ce télégraphe résulte de trois parties semblables ; une de ces parties est représenté (4) photo ci-dessous. Le support A A étant disposé en échelle à jour, disparait dans l'éloignement pour ne laisser apercevoir que les indicateurs b, c, d, e, deux desquels b et d sont fixes, et les deux autres mobiles.

La fig. 2 indique les dix positions principales des indicateurs mobiles qui correspondent aux nombres 0, 1, 2, 3, 4, 5, 6, 7, 8, 9. Les auteurs du vigigraphe ont cru qu'il était convenable que la correspondance télégraphique ne fût établie que par des nombres dont la signification peut toujours être changée à volonté, et ne pas être com- prise par les agents intermédiaires.
Les indicateurs mobiles d et e sont mus à l’aide d’une corde sans-fin f f, qui passe sur les quatre poulies g g g g. Cette corde porte sur sa longueur de petites plaques où sont tracés des chiffres, chacun desquels, lorsqu’il correspond au repère h, marque que les indicateurs se trouvent dans la situation convenable pour signaler ce même chiffre.
Chaque station télégraphique devait, suivant le système de MM. Laval et Moncabrié, avoir trois appareils semblables à celui que nous venons d’indiquer, et ils devaient être placés à la distance d’environ 10 pieds l’un de l’autre. Le premier appareil sert pour les unités, celui à côté pour les dizaines, et l’autre pour les centaines ; de sorte que ces trois appareils donnent 999 signaux.
Les auteurs ont imaginé d’appliquer les règles de l’arithmétique décimale à leur vigigraphe, pour obtenir 999,999 signaux ; à cet effet, ils se sont servis d’un indicateur mobile placé sur un chariot à coulisse (qui n’est point marqué dans la figure).
Cet indicateur fait l’office de la virgule qui distingue les entiers des décimales, et peut passer successivement à la gauche des colonnes de unités, des dizaines ou des centaines, et rendre de cette manière, suivant le principe décimal, les nombres indiqués, dix fois, cent fois ou mille fois plus petits.
Pour exprimer, par exemple, le nombre 543,631, on signale d’abord à la manière ordinaire 543, puis on fait passer l’indicateur-virgule à la gauche de la colonne des centaines, et enfin on signale le nombre 631.
Le système du vigigraphe est fort ingénieux, mais il a le défaut de manquer de simplicité et d’exiger un emplacement trop vaste : ces motifs ont fait préférer, pour l’usage de la marine, le télégraphe à quatre bras, dont M. Depillon est l’inventeur.
Ce télégraphe, de la plus grande simplicité, est représenté, dessin ci-contre, fig. 1 et 3.

Il est composé d’un mât vertical A A, le long duquel sont placés quatre bras tournants b, c, d, f. L’axe de chacun des bras porte une poulie sur la- quelle passe une corde sans-fin, qui aboutit à une poulie m, placée au pied du mât, et qui est mue par une manivelle p.
Chacun des bras prendra huit positions bien distinctes, sa- voir, deux verticales, deux horizontales et quatre inclinées de 45 degrés par rapport au mât. Sur ces huit positions, les deux verticales se confondront avec le mât et ne pourront compter que pour une. Le nombre total des signaux que l’on peut obtenir avec les quatre bras est de 2401.
Ce télégraphe pourra servir pendant la nuit en adaptant à chaque bras trois lanternes qui, étant suspendues à des pivots tournants, se maintiendront toujours dans une position verticale.
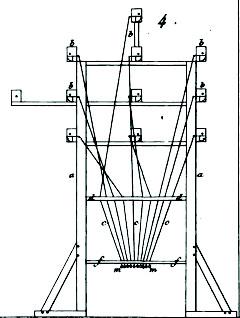
M. Edelkrantz a imaginé un télégraphe de nuit, représenté par le dessin ci-contre, fig. 4. Le châssis vertical a a sert de support à un certain nombre de lampes indiquées par les lettres b b b b b ; chacune d’elles est entourée d’un cylindre de fer-blanc auquel correspond un des fils c c c.
Ces fils, qui traversent les barres d d et f f, sont terminés au-dessous de cette dernière par des boutons m m ;

ils sont disposés de manière que lorsqu’on tire un de ces boutons, le cylindre qui y correspond se soulève et la lampe est découverte ; le poids du cylindre le fait retomber aussitôt qu’on lâche le bouton.
Le nombre et la position des lampes que l’on découvre successivement, forment plusieurs séries de figures lumineuses, auxquelles on attache des
significations déterminées.
Ce télégraphe nocturne nous paraît recommandable par la simplicité de sa construction, par la facilité de sa manœuvre, et surtout parce que les signaux qu’il produit sont très distincts.
Télégraphes militaires
Il est extrêmement utile qu’une armée ait à sa disposition des télégraphes portatifs au moyen desquels le général en chef puisse transmettre les ordres avec la plus grande promptitude, et qui servent à prolonger les lignes télégraphiques permanentes lorsqu’une armée entre en pays ennemi.
Les télégraphes portatifs doivent être très-simples, peu volumineux, en un mot tels qu’on puisse les monter et les démonter en très-peu de temps. Le télégraphe de Depillon* remplit ces conditions d’une manière satisfaisante ; il est très-simple, son service n’est nullement pénible, un quart d’heure peut suffire pour le monter ou le démonter sur le terrain. On forme le mât de plusieurs pièces qui s’emboîtent l’une dans l’autre pour la facilité de le placer sur des charrettes.
Le télégraphe représenté dessin ci-contre, fig. 2, est de l’invention de M. Edgeworth. Il est très-léger ;

deux hommes peuvent le monter en cinq minutes, et le démonter avec une égale promptitude. Lorsqu’il est démonté ses pièces n’occupent qu’un petit espace.
L’indicateur du télégraphe de M. Edgeworth est un triangle en toile A tendue sur les bras 1, 2, 3, et d’un treuil a, qui est formé par un axe creux en fer-blanc et qui à la forme de deux cônes tronqués assemblés par leurs ba- ses ; deux chevalets ployans b b soutiennent le télégraphe, et le tout est arrêté par des cor- des fixées à des piquets comme on le voit fig. 2.
La hauteur totale de la machine montée et prête à travailler est de 6 à 8 pieds. La distance à laquelle des télégraphes de cette espèce se correspondent ne peut être que de 1600 à 1800 toises.
L’observateur placé à chacun d’eux doit être muni d’une lunette posée sur un pied triangulaire semblable à celui des planchettes. Ce télégraphe n’est susceptible que des huit positions qui sont indiquées fig. 3 et 4 ; chacune d’elles exprime une signification déterminée
Signaux permanents à l'usage de la marine
Les signaux permanents sont de deux espèces : les uns, nommés Balises, servent à indiquer aux navigateurs les écueils et les endroits périlleux ; les autres indiquent aux navires pendant la nuit les directions qu’ils doivent suivre.
La fig. 9, ci-dessous, représente une balise ordinaire, qui n’est autre chose qu’un corps flottant attaché à des chaînes d’amarrage. Ces balises, dont la position est oblique, ont l’inconvénient d’être presque invisibles par la réflexion du soleil ou de la lune, et souvent même par une légère brume.

M. Longan, réfléchissant à ces inconvénients, a imaginé la balise représentée fig. 8, ci-dessous, à laquelle il a donné le nom de pyramide maritime ; cette balise jouit de la propriété de n’être point sujette, comme les anciennes, à l’immersion par la force du courant réunie à celle de la marée;
la forme de sa partie inférieure a est telle, que la force du courant tend à la soulever ; d’où il suit que la même cause qui produit la submersion totale des balises ordinaires tend à augmenter l’élévation de la pyramide maritime.
M. Longan a imaginé un moyen d’avertir les vaisseaux dans un temps brumeux des dangers qui les menacent ; ce moyen consiste à suspendre dans l’intérieur de sa pyramide maritime une cloche autour de laquelle seront disposées des boules attachées à des chaînes qui, à la moindre agitation des vagues, frapperont la cloche, dont le son pourra être augmenté au moyen de porte-voix p p.
La pyramide maritime pourra devenir un asile pour les malheureux naufragés. Plusieurs balises de cette espèce ont été construites en Angleterre : on leur donne ordinairement 22 pieds d’élévation, et 10 pieds de diamètre dans l’endroit le plus large ; leur immersion est de 21 pouces, et elles sont amarrées à de fortes chaînes. (sic)
